- Woonoppervlakte
- Circa 104 m²
- Perceeloppervlakte
- Circa 214 m²
- Bouwjaar
- Gebouwd in 1988
- Aantal kamers
- 5 kamers (4 slaapkamers)
Algemeen:
Bouwjaar: 1988
Woonoppervlakte: 104 m2
Garage: 18 m2
Perceel: 214 m2
Energielabel: B
De woning is gelegen aan een rustige, gezellige straat en biedt met vier slaapkamers, een nette keuken en een zonnige achtertuin alles wat je zoekt in een fijn huis.
Bij binnenkomst valt direct de lichte woonkamer op, met grote raampartijen en voorzien van een schuifpui naar de tuin. De keuken is halfopen en uitgevoerd met een granieten werkblad, inductiekookplaat, vaatwasser en koelkast. Vanuit de tussenhal is er toegang tot de garage en de achtertuin. De zonnige achtertuin is keurig aangelegd met meerdere terrassen en kunstgras. De tuin beschikt bovendien over een grote houten tuinhuis.
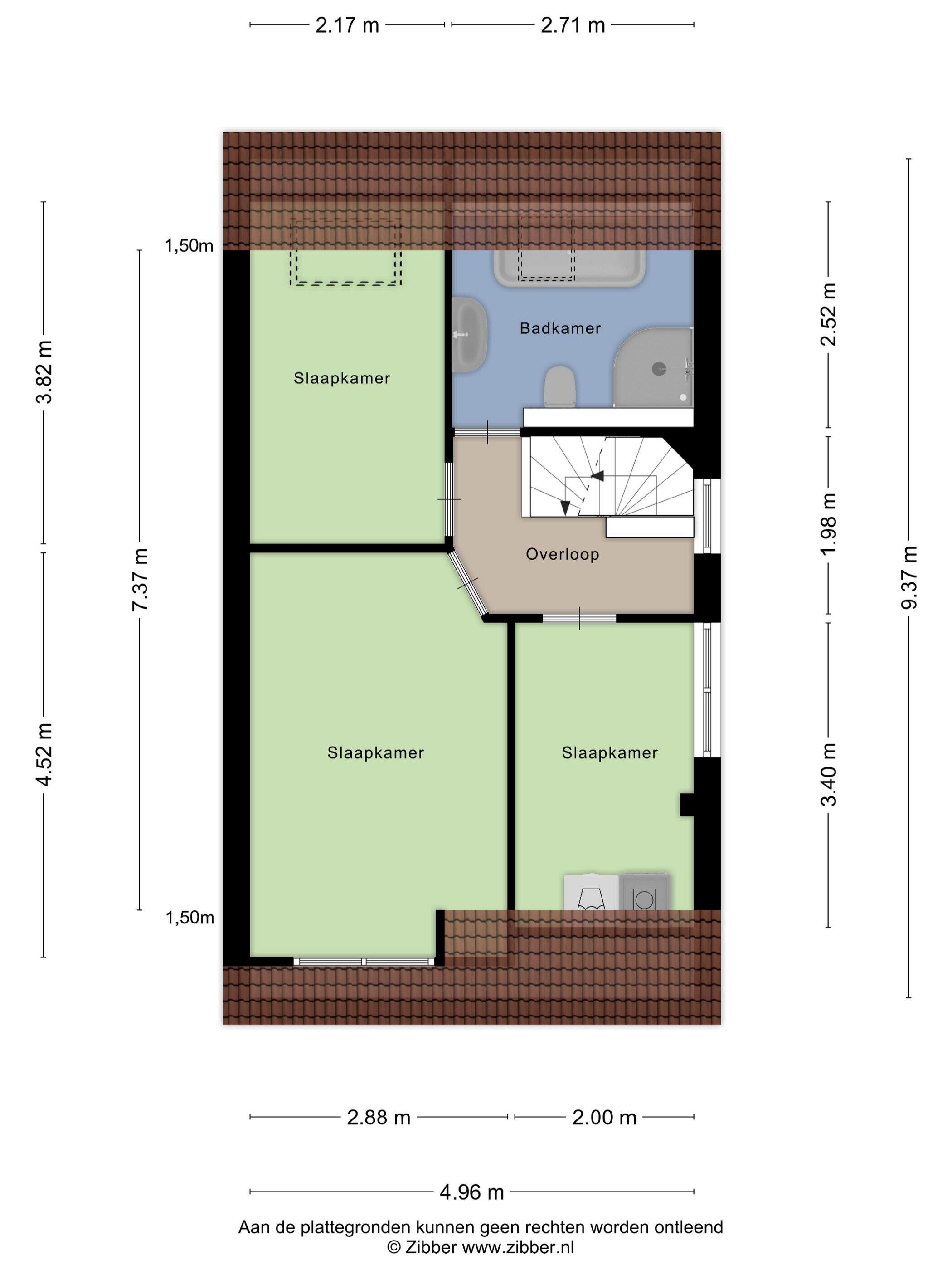
Op de eerste verdieping vind je drie slaapkamers, waarvan één met dakkapel en twee met dakramen. De badkamer is compleet uitgerust met ligbad, aparte douche, wandcloset, wastafel en designradiator. Eén van de slaapkamers wordt nu gebruikt als waskamer, maar de aansluitingen zijn ook op zolder aanwezig.
De tweede verdieping verrast met een vierde slaapkamer, voorzien van airco, kunststof dakkapel (2014), knieschotten en een handige vliering. Op de voorzolder bevinden zich de cv-ketel (Nefit 2021) en de aansluitingen voor wasmachine en droger.
De woning is bovendien voorzien van 11 zonnepanelen (2019) en een nieuw elektrisch zonnescherm. Parkeren kan eenvoudig op eigen terrein en de voortuin is onderhoudsarm aangelegd.
Kortom: een instapklare woning met garage en een zonnige tuin, ideaal voor wie comfortabel wil wonen op een fijne locatie dichtbij het centrum van Wijchen, winkelcentrum Zuiderpoort, scholen en het Wijchens meer.
De woning is voorzien van 11 zonnepanelen
Overdracht
- Vraagprijs
- € 459.000 k.k.
- Status
- Verkocht
- Aanvaarding
- In overleg
Bouw
- Object type
- Eengezinswoning, 2 onder 1 kapwoning
- Soort bouw
- Bestaande bouw
- Bouwjaar
- 1988
- Soort dak
- Zadeldak
Oppervlakte en inhoud
- Woonoppervlakte
- 104 m²
- Perceeloppervlakte
- 214 m²
- Inhoud
- 432 m³
- Overige inpandige ruimte
- 18 m²
- Gebouwgeb. buitenruimte
- 3 m²
Indeling
- Aantal kamers
- 5 kamers (4 slaapkamers)
- Aantal badkamers
- 1 badkamer
- Badkamervoorzieningen
- Ligbad, toilet, douche, wastafel
- Aantal woonlagen
- 3 woonlagen
- Voorzieningen
- Schuifpui, glasvezel kabel, zonnepanelen
Energie
- Energielabel
- B
- Energielabel registratie
- 23-09-2025
- Isolatie
- Dubbel glas
- Verwarming
- Cv-ketel
- Warm water
- Cv-ketel
- Cv ketel
- Nefit trendline combiketel gas gestookt uit 2021 (eigendom)
Buitenruimte
- Tuin
- Geen tuin
Bergruimte
- Schuur / berging
- Aangebouwd hout
Garage
- Soort garage
- Aangebouwd steen
- Capaciteit
- 1 auto
Parkeergelegenheid
- Soort parkeergelegenheid
- Op eigen terrein
Indicatie hypotheeklasten
Eigen inleg:
Spaargeld / overwaarde
Rente:
Laagste 10-jaars rente
Laagste 10-jaars rente
2,85% - Centraal Beheer Groen... - NHG
3,08% - Centraal Beheer Groen... - 80%
Laagste 20-jaars rente
3,29% - Centraal Beheer Groen... - NHG
3,52% - Centraal Beheer Groen... - 80%
Laagste 30-jaars rente
3,41% - Centraal Beheer Groen... - NHG
3,74% - Centraal Beheer Groen... - 80%
Hypotheek:
Bruto maandlasten: € 0 p/m
Netto maandlasten: € 0 p/m
Hoe berekenen we dit?
Het rentepercentage is gebaseerd op de laagste 10 jaars vaste rente voor één hypotheekdeel. De vermelde rente (3.08% zonder NHG) is gecontroleerd op 03-02-2026. Deze berekening is gebaseerd op een annuïteitenhypotheek die volledig wordt afgelost, waarbij de maandlasten gedurende de gehele looptijd gelijk blijven. De werkelijke rente en netto maandlasten kunnen variëren, afhankelijk van uw persoonlijke situatie en de hypotheekverstrekker. Raadpleeg een financieel adviseur voor een nauwkeurige berekening en advies. Aan deze berekening kunnen geen rechten worden ontleend; het dient enkel als indicatie.
Documentatie
Kadastrale kaart
Leefomgeving
Plattegronden PDF
BAG uittreksel
Brochure
WOZ waarderapport
Bezoek onze website
Inloggen move.nl
Bezichtiging
Bod uitbrengen
Waardebepaling
Zoekopdracht
Alles downloaden
Zonnegrenzen bekijken
Op de kaart
Inwoners in Wijchen
Cijfers voor postcodegebied 6605
- Totaal aantal inwoners
- 36260 inwoners
- Mannen
- 49%
- Vrouwen
- 51%
Inwoners in Wijchen
Cijfers voor postcodegebied 6605
- tot 15 jaar
- 12%
- 15 tot 25 jaar
- 13%
- 25 tot 35 jaar
- 19%
- 45 tot 65 jaar
- 34%
- 65 en ouder
- 21.7%
Huishoudens in Wijchen
Cijfers voor postcodegebied 6605
- Eenpersoons zonder kinderen
- 27%
- Meerpersoons zonder kinderen
- 32%
- Huishoudens zonder kinderen
- 59%
Huishoudens in Wijchen
Cijfers voor postcodegebied 6605
- Huishoudens met één kind
- 20%
- Huishoudens met meerdere kinderen
- 21%
- Huishoudens met kinderen
- 41%
Woningen in Wijchen
Cijfers voor postcodegebied 6605
- Woningen voor 1945
- 1%
- Woningen tussen 1945 en 1965
- 1%
- Woningen tussen 1965 en 1975
- 1%
- Woningen tussen 1975 en 1985
- 32%
- Woningen tussen 1985 en 1995
- 39%
Woningen in Wijchen
Cijfers voor postcodegebied 6605
- Woningen tussen 1995 en 2005
- 25%
- Woningen tussen 2005 en 2015
- 3%
- Woningen na 2015
- 1%
- Huurwoningen
- 40%
- Koopwoningen
- 60%
Overige in Wijchen
Cijfers voor postcodegebied 6605
- Gemiddelde WOZ waarde
- € 309.000,-
- Personen onder de 65 met uitkering
- 8%
Overige in Wijchen
Cijfers voor postcodegebied 6605
- Adressen per km²
- 1301
- Stedelijkheid (schaal 1 op 5)
- 60%
Korte feiten over Wijchen
Wijchen is de hoofdplaats van de gemeente Wijchen in de Nederlandse provincie Gelderland. De plaats is met 36.625 inwoners (op 1 januari 2021) de grootste in de gelijknamige gemeente van bijna 41.000 inwoners. Wijchen ligt aan de zuidgrens van Gelderland, tegen Noord-Brabant aan.
Indien u vragen heeft of u wilt een bezichtiging inplannen, dan kunt u gebruik maken van het formulier hiernaast. Er zal daarna op korte termijn contact met u worden opgenomen.
Kasteellaan 23
6602 DB, Wijchen
024 64 90100 binnendienst@driessenmakelaardij.nl www.driessenmakelaardij.nlContact opnemen
Al 40 jaar uw huismakelaar
Ondernemende makelaar met ambitie
U wilt een huis kopen, verkopen of laten taxeren. Het liefst schakelt u een betrouwbare makelaar in bij u in de buurt. Maar hoe vindt u precies de makelaar die het best bij u past? Het aanbod is al zo groot.
Driessen Makelaardij maakt uw keuze een stuk gemakkelijker. Hoe? Allereerst zijn we al veertig jaar een begrip in de regio. Met een kantoor in Wijchen en in Nijmegen kennen wij de lokale huizenmarkt op ons duimpje. En niet onbelangrijk: de huizenmarkt kent ons. ‘Want vaak is de eerste stap van een woningzoeker de stap naar ons kantoor.’ Hierdoor weten wij vraag en aanbod snel bij elkaar te brengen en perfect in te spelen op de wensen van klanten en potentiële klanten. Bovendien zijn we aangesloten bij de NVM, de grootste brancheorganisatie in de makelaardij. Onze mensen zijn dus uitstekend in staat het hele aan- en verkooptraject van begin tot eind professioneel te begeleiden.
Uw ambitie is onze ambitie. Dat wil zeggen: u verwacht van ons dat we tot het uiterste gaan u die kwaliteit te bieden waarom we al zo lang bekend staan. Daar mag u ons aan houden!
Nieuwste reviews
-
Zesakkers 2015
Het contact met de makelaar verliep erg goed. Goed bereikbaar, korte lijntjes en deskundig. Erg tevreden
-
Aalsburg 2524
Fijne en goede communicatie.Goed advies en meedenken met de klant.Zo kan het dus ook 😀Bedankt Ivonne Jansen + binnendienst team
-
Marskramer 51
Prettig contact met de makelaar; zij hield ons tussentijds steeds op de hoogte na een bezichtiging; heel fijn!